242 Palmer Pl, Ruckersville VA 22968
- $675,000
- MLS #:670251
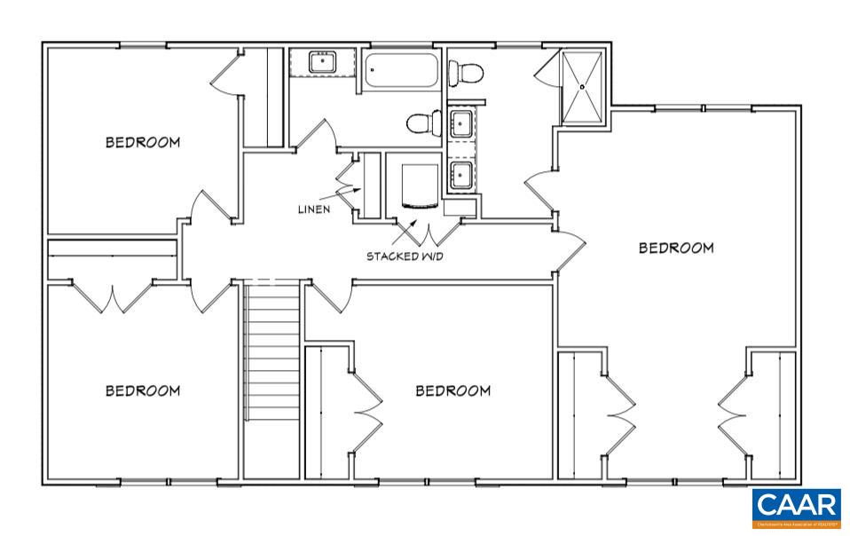
- 4beds
- 2baths
- 1half-baths
- 2,304sq ft
- 2.68acres
Neighborhood: Hancock Farms
Square Ft Finished: 2,304
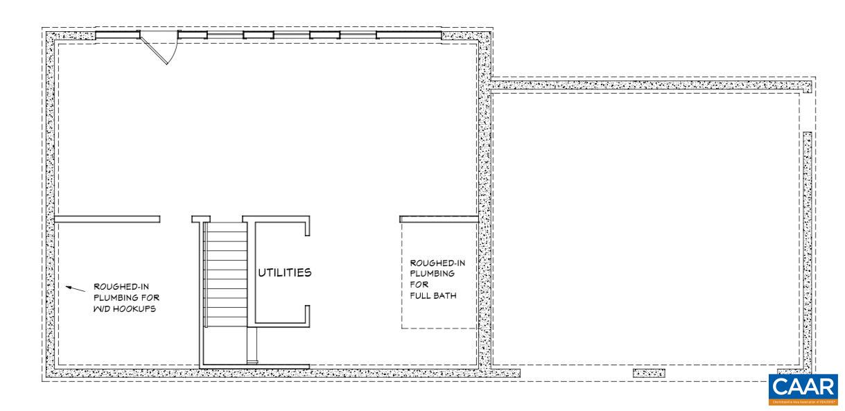
Square Ft Unfinished: 1008
Elementary School: Ruckersville
Middle School: William Monroe
High School: William Monroe
Property Type: residential
Subcategory: Detached
HOA: Yes
Area: Greene
Year Built: 2025
Price per Sq. Ft: $292.97
1st Floor Master Bedroom: WalkInClosets, EntranceFoyer, HomeOffice, KitchenIsland
HOA fee: $250
View: Residential
Security: SmokeDetectors
Design: Colonial
Roof: Architectural
Driveway: Deck, FrontPorch, Porch, Wood
Windows/Ceiling: InsulatedWindows, Screens, TiltInWindows, Vinyl
Garage Num Cars: 2.0
Cooling: HeatPump
Air Conditioning: HeatPump
Heating: HeatPump
Water: Private, Well
Sewer: SepticTank
Features: Carpet, LuxuryVinylPlank
Basement: Full, Heated, InteriorEntry, Unfinished, WalkOutAccess
Appliances: Dishwasher, ElectricRange, Disposal, Microwave, Refrigerator
Amenities: RoadMaintenance
Laundry: WasherHookup, DryerHookup
Amenities: None
Kickout: No
Annual Taxes: $4,658
Tax Year: 2025
Legal: MAP ID: 61C A 69, HANCOCK FARMS PH4 LOT 69 2.68 AC
Directions: From Charlottesville take 29N to Ruckersville. Make RIGHT on RT 33 East, LEFT on Hancock Dr, LEFT on Kenwood Ln, LEFT on Logan Dr, RIGHT on Palmer Pl. Property is on RIGHT in the cul-de-sac.
Fabulous location nestled in a peaceful cul-de-sac surrounded by 2.68 acres of mature hardwoods in the prestigious Hancock Farms subdivision. SPECTACULAR floor plan boasts: 2,304 FINISHED SF plus 1,008 UNFINISHED SF in the WALKOUT BASEMENT, 4BRs plus 1st Floor HOME OFFICE, 2.5 BATHS, OPEN FLOOR PLAN, STAINLESS STEEL APPLIANCES, KITCHEN ISLAND, GRANITE COUNTERTOPS, LUXURY VINYL PLANK FLOORS, 16' x 12' REAR DECK, and more! The developer has a multitude of options for building a home that fits your lifestyle! Our SMART floor plans can accommodate 1 level or 2 level living w/ an attached garage on a basement or crawl space. Builder is willing to CUSTOM DESIGN a home according to your specifications. Community is neighborly, well-maintained, & has a park-like setting. This home site is conveniently located near all shopping, restaurants, schools, health facilities, and entertainment. Quick access to RT 29 will get you to Charlottesville in 20 minutes. Enjoy the Blue Ridge Mountains for hiking, camping, and outdoorsy fun activities. Click on our VIRTUAL TOUR! Review the PHOTOS section for 3 MORE DESIGNS priced at $675,000! Check out another TO BE BUILT listing priced: $675,000 at 242 Palmer Pl, Ruckersville, VA 22968 MLS# 667494.
Days on Market: 147
Updated: 3/16/26
Courtesy of: Target The Market Real Estate
Want more details?
Directions:
From Charlottesville take 29N to Ruckersville. Make RIGHT on RT 33 East, LEFT on Hancock Dr, LEFT on Kenwood Ln, LEFT on Logan Dr, RIGHT on Palmer Pl. Property is on RIGHT in the cul-de-sac.
View Map
View Map
Listing Office: Target The Market Real Estate