1186 Nelson Dr, Harrisonburg VA 22801
- $379,500
- MLS #:674162
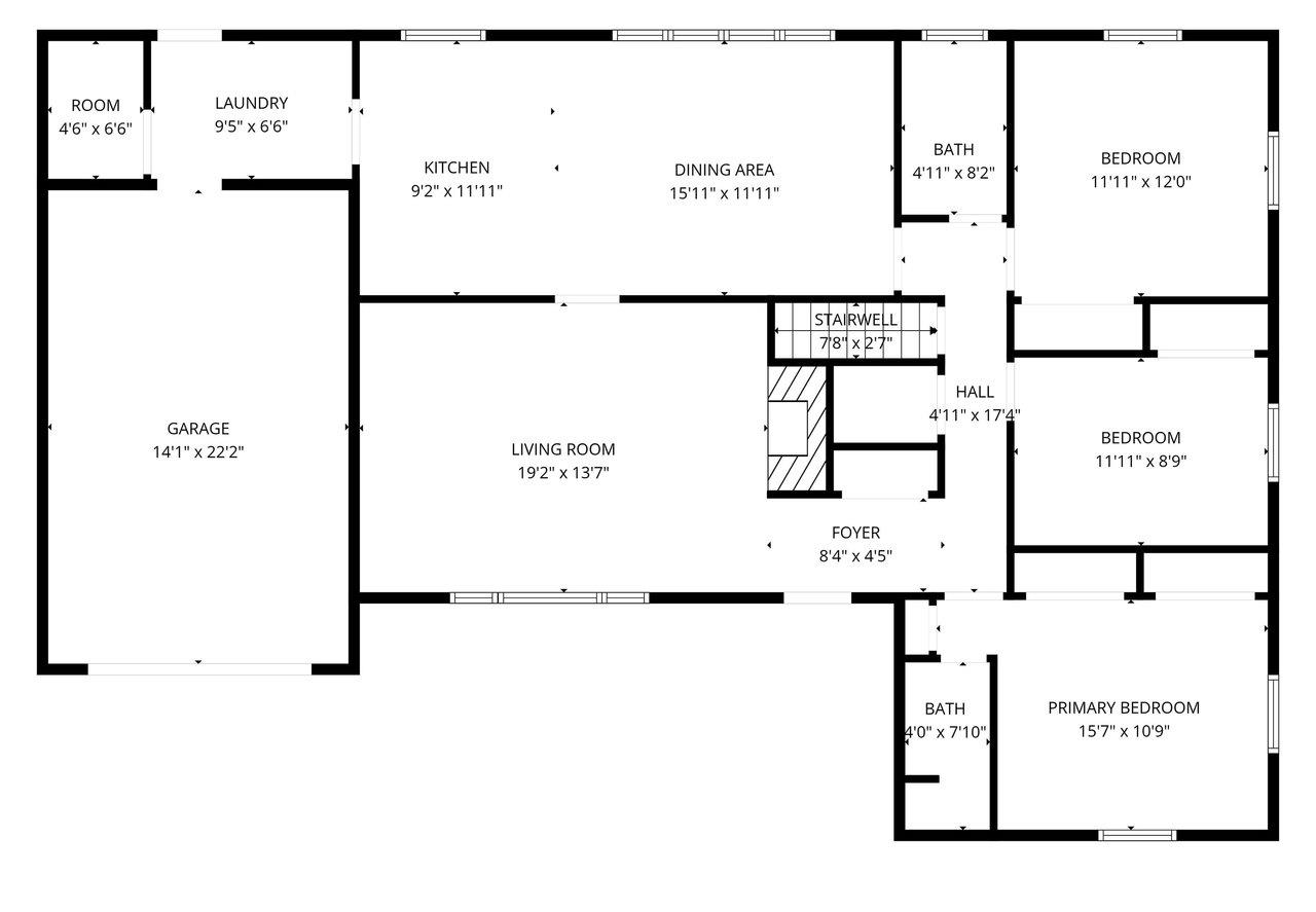
- 4beds
- 2baths
- 1half-baths
- 2,623sq ft
- 0.45acres
Neighborhood: Ashby Heights
Square Ft Finished: 2,623
Square Ft Unfinished: 354
Elementary School: Stone Spring
Middle School: Skyline
High School: Rocktown
Property Type: residential
Subcategory: Detached
HOA: No
Area: Harrisonburg
Year Built: 1960
Price per Sq. Ft: $144.68
1st Floor Master Bedroom: PrimaryDownstairs, HomeOffice, UtilityRoom
HOA fee: $0
Design: Ranch
Roof: Composition,Shingle
Driveway: Concrete, Patio
Garage Num Cars: 1.0
Cooling: CentralAir, HeatPump
Air Conditioning: CentralAir, HeatPump
Heating: Central, ForcedAir, HeatPump, MultiFuel, Oil
Water: Public
Sewer: PublicSewer
Features: Carpet, LuxuryVinylPlank
Basement: Full, InteriorEntry, PartiallyFinished, WalkOutAccess
Fireplace Type: Two, WoodBurning, WoodBurningStove
Appliances: BuiltInOven, Dishwasher, ElectricCooktop, Refrigerator, Dryer, Washer
Laundry: WasherHookup, DryerHookup
Kickout: No
Annual Taxes: $3,336
Tax Year: 2025
Legal: Quadrant 3 SS Nelson Dr. Lot 4 Block 4 Section 2 Ashby Heights.
Directions: From Harrisonburg, take Port Republic Rd. to left turn on Nelson Dr. Home will be on the right.
INCREDIBLE NEW PRICE for this charming and well-maintained brick ranch in one of Harrisonburg’s most desirable and convenient neighborhoods! This classic, one-story ranch-style home offers 4 bedrooms and timeless appeal, all lovingly cared for by the same owner for the past 25 years. The home is in excellent condition and reflects pride of ownership throughout. Enjoy the convenience of being just minutes from James Madison University, Sentara RMH, shopping, dining, and everyday amenities while still enjoying the privacy of a spacious and almost 1/2 acre city lot. Whether you’re looking for comfortable one-level living, room to expand, or simply a peaceful setting close to everything, this property offers exceptional opportunity in an ideal location. Fresh paint throughout much of the home, new carpet in bedrooms, and a new 200 amp electrical panel are just a few of the recent updates. This is one you won't want to get away - schedule your appointment today!
Days on Market: 16
Updated: 3/26/26
Courtesy of: Kline May Realty
Want more details?
Directions:
From Harrisonburg, take Port Republic Rd. to left turn on Nelson Dr. Home will be on the right.
View Map
View Map
Listing Office: Kline May Realty